
Superial - aluminiowe okna i drzwi.

Superial 800 - opis systemu
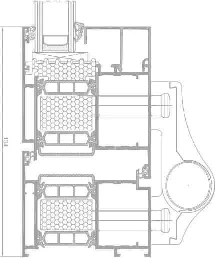
Trzykomorowy system przeznaczony do projektowania drzwi o podwyższonej izolacyjności termicznej. Dostępne warianty systemu:
- SP 800 i
- SP 800 i+
Wzmocnioną izolację termiczną uzyskano poprzez zastosowanie specjalnych wkładów termicznych montowanych pomiędzy przekładkami termicznymi i wokół szyby, poprawiających współczynniki izolacyjności termicznej profilu 0,2-0,4 W/m2K.
System jest kompatybilny z systemem Superial – dzięki adaptacyjnym projektom profili w serii SP800 może być zintegrowany z witrynami sklepowymi Superial.
System posiada bardzo dobre właściwości antywłamaniowe (zamek znajduje się z dala od strony zewnętrznej).
Pozostałę cechy systemu to:
- nadproże termoizolacyjne, które można zdemontować po zamontowaniu drzwi w ościeżnicy;
- możliwość gięcia profili (szczegółowa specyfikacja profili oraz szczegółowe parametry techniczne procesu gięcia profili dostępne są w strefie klienta na stronie www.aliplast.pl);
- szeroka gama dostępnych kolorów – paleta RAL, kolory strukturalne, Aliplast Wood Colour Effect, anodowany, dwukolorowy;

SP 800 - Specyfikacja
| System | SP 800 i | SP 800 i+ |
|---|---|---|
| Thermal insulation | Uf from Uf from 1,61 W/m²k | Uf from Uf from 1,36 W/m²k |
| Air permeability | Class 4; EN 12207 | Class 4; EN 12207 |
| Windload resistance | 2400Pa; EN 12210 | 2400Pa; EN 12210 |
| Watertightness | Class 8A; EN 12208 | Class 8A; EN 12208 |
| Material | aluminium/polyamid | aluminium/polyamid |
| Depth of frame | 75 mm | 75 mm |
| Depth of leaf | 75 mm | 75 mm |
| Glazing range | 14-69 mm | 14-69 mm |
| Type of doors | single and double doors, outside and inside opening, panic doors | single and double doors, outside and inside opening, panic doors |
| *Thermal insulation is dependent on a combination of profiles and thickness of the filling. | ||

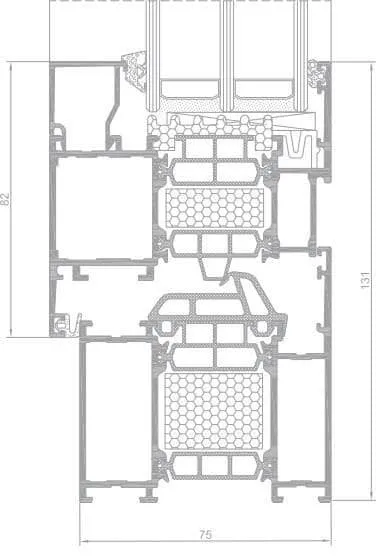
SP i, SP i+ - opis systemu
System przeznaczony jest do projektowania okien i drzwi o wysokich parametrach izolacyjności termicznej. Dostępne warianty systemu:
- SP i
- SP i+
Charakterystyka systemu:
- możliwość montażu okien w systemach fasadowych;
- Listwy szybowe dostępne w wersji prostokątnej i okrągłej;
- kształty profili odpowiednich do montażu różnych okuć obwodowych, w tym ukrytych zawiasów i okuć pvc;
- szeroka gama przeszkleń pozwala na stosowanie wszystkich typów szyb jedno- i dwukomorowych, akustycznych i antywłamaniowych;
- odwadnienia profili w dwóch wariantach: tradycyjnym i ukrytym
- możliwość gięcia profili (szczegółowa specyfikacja profili oraz szczegółowe parametry techniczne procesu gięcia profili dostępne są w strefie klienta na stronie www.aliplast.pl
- dostępna opcja niskiego nadproża w jednoskrzydłowych lub dwuskrzydłowych prostokątnych drzwiach balkonowych (projekty z zastosowaniem dedykowanych profili);
- dodatkowo zwiększono szczelność konstrukcji dzięki zastosowaniu uszczelki ACRS461;
- system pozwala również na projektowanie nowoczesnych rozwiązań okiennych w wielu wariantach; stosowany jest w projektowaniu budynków mieszkalnych i użyteczności publicznej;
- kolory – szeroka gama dostępnych kolorów – paleta RAL, kolory strukturalne, Aliplast Wood Colour Effect, anodowany, dwukolorowy;
Projektowanie systemów SP i, SP i+ opiera się na sprawdzonym, rozbudowanym i uznanym systemie bazowym Superial.

SP i - specyfikacja
| System | SP i | SP i+ |
|---|---|---|
| Thermal insulation | Uf from Uf from 1,41 W/m²k | Uf from Uf from 1,08 W/m²k |
| Air permeability | Class 4; EN 12207 | Class 4; EN 12207 |
| Windload resistance | Class C5/B5; EN 12210 | Class C5/B5; EN 12210 |
| Watertightness | Class E1950; EN 12208 | Class E1950; EN 12208 |
| Material | aluminium/polyamid | aluminium/polyamid |
| Depth of frame | 75 mm | 75 mm |
| Depth of leaf | 84 mm | 84 mm |
| Glazing range | 14-61 mm | 14-61 mm |
| Type of windows | single and double windows, outside opening, inside opening | single and double windows, outside opening, inside opening |
| *Thermal insulation is dependent on a combination of profiles and thickness of the filling. | ||

SP OUT - opis systemu
System okienny umożliwiający projektowanie okien uchylnych i otwieranych na zewnątrz. Superial OUT posiada licowaną powierzchnię wewnętrzną ościeżnicy i skrzydła. Takie okna pozwalają na pełne wykorzystanie przestrzeni wewnątrz budynku.
Dostępne warianty systemu:
- wariant SP OUT i – z dodatkową izolacją termiczną, na styku profil-szkło.
- SP OUT i+ – wariant z dodatkową izolacją termiczną w przestrzeni pomiędzy przekładkami termicznymi.
System Superial OUT jest w pełni kompatybilny z systemem okiennym Superial (posiadają wspólne elementy systemu: łączniki, uszczelki, listwy przyszybowe).
- system Superial OUT posiada licowaną powierzchnię wewnętrzną ościeżnicy i skrzydła;
- okna rozwierne mogą być wyposażone w dwa rodzaje zawiasów: zawiasy obrotowe lub nożycowe; stosowane okucia umożliwiają uchylanie górnej lub dolnej części okna na zewnątrz; możliwość uchylania okna z ogranicznikiem krańcowym
- okna uchylne mogą być wyposażone w dwa rodzaje zawiasów: zawiasy obrotowe lub nożycowe
- dostępna opcja zintegrowania okien ze ścianami za pomocą profilu rewersyjnego.
- opcja gięcia profili (szczegółowa specyfikacja profili oraz szczegółowe parametry techniczne procesu gięcia profili dostępne są w strefie klienta na stronie www.aliplast.pl)
- Dostępna jest szeroka gama kolorów – paleta RAL, kolory strukturalne, Aliplast Wood Colour Effect, anodowane, dwukolorowe
System ten jest bardzo popularny w krajach nordyckich i na Wyspach Brytyjskich. Idealnie pasuje do starych i stylizowanych dworków, drewnianych domków lub prostych domów typu skandynawskiego. Z takimi oknami często stosuje się okiennice.

SP OUT - specyfikacja
| System | SP OUT i | SP OUT i+ |
|---|---|---|
| Thermal insulation | Uf from Uf from 1,65 W/m²k | Uf from Uf from 1,41 W/m²k |
| Air permeability | Class 4; EN 12207 | Class 4; EN 12207 |
| Windload resistance | Class C5/B5; EN 12210 | Class C5/B5; EN 12210 |
| Watertightness | Class E1950; EN 12208 | Class E1950; EN 12208 |
| Material | aluminium/polyamid | aluminium/polyamid |
| Depth of frame | 75 mm | 75 mm |
| Depth of leaf | 84 mm | 84 mm |
| Glazing range | max 61 mm | max 61 mm |
| Type of windows | outward opening | outward opening |
| *Thermal insulation is dependent on a combination of profiles and thickness of the filling. | ||

SP SU - opis systemu
System z izolacją termiczną przeznaczony do projektowania okien z ukrytym skrzydłem, niewidocznym z zewnątrz. Specjalnie zaprojektowany kształt ościeżnicy kryje w sobie pełną wysokość profilu skrzydła. System SP SU jest systemem preferowanym przez projektantów, gdyż umożliwia „ukrycie” okien w konstrukcji aluminiowo-szklanej.
- szeroka gama szyb pozwala na stosowanie wszystkich typów szyb jedno- i dwukomorowych, akustycznych i antywłamaniowych;
- odwodnienia w dwóch wariantach: tradycyjnym i ukrytym;
- dostępna opcja niskiego progu w jednoskrzydłowych drzwiach balkonowych (dodatkowo poprawiono szczelność konstrukcji dzięki zastosowaniu uszczelki ACSR461);
- opcja gięcia profili (szczegółowa specyfikacja profili oraz szczegółowe parametry techniczne procesu gięcia profili dostępne są w strefie klienta na stronie www.aliplast.pl);
- dostępna jest szeroka gama kolorów – paleta RAL, kolory strukturalne, Aliplast Wood Colour Effect, anodowane, dwukolorowe;

SP SU - specyfikacja
| System | SP SU i | SP SU i+ |
|---|---|---|
| Thermal insulation | Uf from Uf from 1,48 W/m²k | Uf from Uf from 1,12 W/m²k |
| Air permeability | Class 4; EN 12207 | Class 4; EN 12207 |
| Windload resistance | Class C5/B5; EN 12210 | Class C5/B5; EN 12210 |
| Watertightness | Class E900; EN 12208 | Class E900; EN 12208 |
| Material | aluminium/polyamid | aluminium/polyamid |
| Depth of frame | 75 mm | 75 mm |
| Depth of leaf | 78 mm | 78 mm |
| Glazing range | 14-51 mm | 14-51 mm |
| Type of windows | hidden sash | hidden sash |
| *Thermal insulation is dependent on a combination of profiles and thickness of the filling. | ||
