
PVC-Fenster
Die hochwertigen PVC-Fenster sind so konstruiert, dass alle Elemente auf die Energieeffizienz des Hauses einwirken.

Alle Fenstermodelle verbinden moderne und sichere Lösungen mit kompromissloser Ästhetik. Sie sind elegant und langlebig und verfügen über sehr günstige Wärme- und Schalldämmwerte.
Dank des funktionellen Zubehörs können Sie Ihre Fenster und Terrassentüren leicht an Ihre eigenen Bedürfnisse anpassen.
Denken Sie an die Möglichkeit, die Fenster in einer einheitlichen Farbe zu gestalten und an die Möglichkeit, sie einseitig oder beidseitig zu furnieren, sowie an die Zweifarbigkeit.
FEN 92 | FEN 82 | FEN 76
FEN 92
FENSTER DER PREMIUMKLASSE
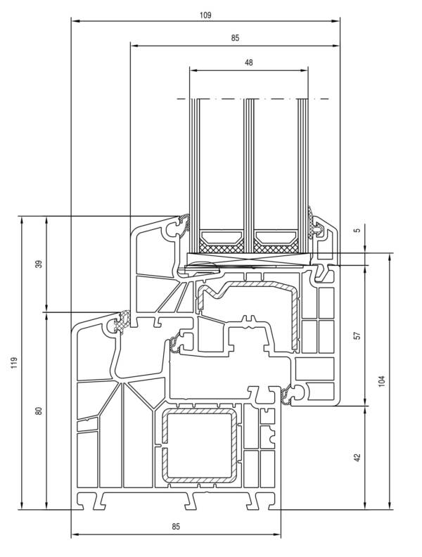
Das wärmste Fenstermodell, das die Anforderungen des energiesparenden Bauens (Uw = 0,76 W / (m2K)) optimal erfüllt. *
Obwohl sie für Verglasungen bis zu 48 mm Dicke geeignet sind, ist es uns gelungen, ihnen ein elegantes Aussehen zu verleihen. Die hohe Witterungsbeständigkeit sorgt dafür, dass die Fenster immer wie neu aussehen werden.
Profiltiefe bis zu 92 mm, ein dreifaches System von Druckdichtungen, ein warmer Abstandhalter und erhöhte Stabilität der Struktur. Es gibt noch viele weitere Vorteile, fragen Sie den Berater nach Details.
Eine große Auswahl an Zusatzausstattungen, die Möglichkeit der Herstellung von Fenstern in ungewöhnlichen Formen und die Verblendung in der Option Bi-color garantieren die Anpassung an die Innenraumgestaltung und die Fassade.
Die Fenster FEN 92 können in einer einbruchhemmenden Variante mit erhöhtem Einbruchschutz in den Klassen RC1, RC2, RC2N bestellt werden. Es ist eines der wenigen Fenster auf dem polnischen Markt, das in RC-Klassen zertifiziert ist.
Wärmedämmung von uw = 0,76 [W / m2K] *
* Gilt für ein Referenzfenster mit den Abmessungen 1230 × 1480 mm
PRODUKTBESCHREIBUNG
PROFILE:
- 6-Kammer-System mit Stahlverstärkungen von mindestens 1,5 mm Dicke
- 92 mm Profiltiefe
- Profile der Klasse A (Dicke der sichtbaren Wände des Profils mindestens 2,8 mm)
- dreifaches System von Druckdichtungen (Mitteldichtung – MD) aus thermoplastischem TPE-Material in schwarz
(oder wahlweise grau) - Staubschutzstopfen in der Farbe des Rahmenkerns als Standard
- geschlossenes Stahlprofil im Rahmen
- Standardfarbe: weiß
- furnierte Profile mit weißen und braunen Kernen
FÜLLEN
- Emissionsarmes Verbundglas 4 * / 14/4/14 / * 4 Ug = 0,6 [W / m2K], Aluminiumrahmen
HARDWARE
FEN 82
ENERGIESPAREN IM GUTEN STIL
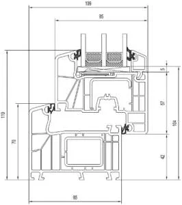
FEN 82-Fenster sind eine Kombination aus optimaler Rahmen- und Flügelkonstruktion, einem durchdachten Dichtungssystem und 3-Scheiben-Energiesparpaketen, die eine deutliche Reduzierung der Wärmeverluste ermöglichen und den Koeffizienten Uw = 0,72 W / m²K erreichen. Damit sind die Fenster FEN 82 perfekt für Energiesparhäuser und solche, die mit Blick auf zukünftige Einsparungen gebaut werden.
Eine breite Palette an Zubehör und eine reichhaltige Farbpalette ermöglichen es, das Fenster an die Bedürfnisse und Erwartungen eines jeden Investors anzupassen.
Das Fenstersystem FEN 82 ist eine stabile Konstruktion mit guter Schalldämmung. In unseren Fenstern verwenden wir energiesparende Dreifachverglasungen mit einer Glasstärke von bis zu 48 mm und der Möglichkeit des Einsatzes von emissionsarmen ECLAZ-Scheiben.
Es handelt sich um das erste Fenstermodell im Angebot, bei dem das Furnier und der Kern in einem einheitlichen Anthrazit-Ton ausgeführt werden können.
Wärmedämmung von uw = 0,72 [W / m2K] *
* Gilt für ein Referenzfenster mit den Abmessungen 1230 × 1480 mm
PRODUKTBESCHREIBUNG
PROFILE:
- 6-Kammer-System mit Stahlverstärkungen von mindestens 1,5 mm Dicke
- 82 mm Profiltiefe
- dreifaches System von Druckdichtungen (Mitteldichtung – MD) aus thermoplastischem TPE-Material in schwarz
(oder wahlweise grau) - Staubschutzstopfen in der Farbe des Rahmenkerns als Standard
- geschlossenes Stahlprofil im Rahmen
- Standardfarbe: weiß
- furnierte Profile mit weißen, braunen und anthrazitfarbenen Kernen
FÜLLUNG
- Emissionsarmes Verbundglas 4 * / 16/4/16 / * 4 Ug = 0,6 [W / m2K], Aluminiumrahmen
HARDWARE
DAS WÄRMSTE FENSTER SEINER KLASSE
Fenster FEN 76 5S in klassischer, schlichter Form, auch in der Version FEN 76 5R erhältlich – mit einem Flügel mit abgerundetem Profil.
Das breite 5-Kammer-Profil ermöglicht es, einen sehr niedrigen Wärmedurchgangskoeffizienten zu erreichen und wird in Energiesparhäusern eingesetzt.
Denken Sie an die Möglichkeit der Herstellung von Fenstern in ungewöhnlichen Formen und deren Verblendung in der Option Bi-color.
Die Fenster FEN 76 können in einer einbruchhemmenden Variante mit erhöhter Einbruchssicherheit in den Klassen RC1, RC2, RC2N bestellt werden. Es ist eines der wenigen Fenster auf dem polnischen Markt, das in RC-Klassen zertifiziert ist. Das beste Preis-Leistungs-Verhältnis.
Wärmedämmung von uw = 0,83 [W / m2K] *
* Gilt für ein Referenzfenster mit den Abmessungen 1230 × 1480 mm
PRODUKTBESCHREIBUNG
PROFILE:
- 5-Kammer-System mit Stahlverstärkungen von mindestens 1,5 mm Dicke
- 76 mm Tiefe des Rahmen- und Flügelprofils
- Doppeltes System von Druckdichtungen aus thermoplastischem TPE-Material in schwarz (oder optional grau)
- Staubschutzstopfen in der Farbe des Rahmenkerns als Standard
- geschlossenes Stahlprofil im Rahmen
- Standardfarbe: weiß
- erhältlich in weißer Ausführung mit Aluminiumabdeckungen an der Außenseite, auch in RAL-Farbenalso in RAL colours
- furnierte Profile mit weißen und braunen Kernen
- Füllung
- Emissionsarmes Verbundglas 4/16 / * 4 Ug = 1,0 [W / m2K] (nach EN 674), Aluminiumrahmen
HARDWARE
- Winkhaus ActivPilot Concept Basic

SYSTEM COMPARISON
| STANDARDS | ADVANTAGES | FEN 76 5S | FEN 76 5R | FEN 82 | FEN 92 | FEN 86 ALU |
|---|---|---|---|---|---|---|
| 5-year warranty | quality, safety | ✔ | ✔ | ✔ | ✔ | ✔ |
| CE documentation | reliable producer | ✔ | ✔ | ✔ | ✔ | ✔ |
| under-sill strip with double seal | tightness, correct assembly | ✔ | ✔ | ✔ | ✔ | - |
| anti-dust seal in the color of the base | aesthetics | ✔ | ✔ | ✔ | ✔ | - |
| anti-theft hooks screwed to steel | peace of mind guaranteed | ✔ | ✔ | ✔ | ✔ | - |
| closed reinforcement in the frame | stability, security, statics | ✔ | ✔ | ✔ | ✔ | - |
| posts screwed to steel | stability, security, statics | ✔ | ✔ | ✔ | ✔ | - |
| profile class | stability, security, statics | B | B | B | A | - |
| system depth [mm] | energy performance | 76 | 76 (leaf 82) | 82 | 92 | 77 (leaf 86) |
| number of chambers | energy performance | 5 | 5 | 6 | 6 | 3 |
| Uf value | energy performance | 1,2 | 1,2 | 0,98 | 1,0 | - |
| type of seal | energy performance | AD | AD | MD | MD | MD |
| frame + sash height [mm] | energy performance | 120 | 120 | 123 | 118 | 103 |
| glazing package | energy performance | up to 44 mm | up to 44 mm | up to 48 mm | up to 48 mm | up to 60 mm |
| Uw value (for 1230x1480 mm window) | functional properties of windows | 0,89 (Ug=0,6) | 0,89 (Ug=0,6) | 0,76 (Ug=0,5) | 0,76 (Ug=0,5) | 0,89 (Ug=0,5) |
| windload resistance | functional properties of windows | C4 | C4 | C4 | C4/B4 | C5 |
| watertightness | functional properties of windows | 9A | 9A | 9A | E1050 | E1500 |
| dangerous substances | functional properties of windows | do not contain | do not contain | do not contain | do not contain | do not contain |
| sound insulation Rw (C, Ctr) dB | functional properties of windows | 34 (4/16/4/16/4) | 34 (4/16/4/16/4) | 34 | 35 (4/14/4/14/4) | - |
| air permeability | functional properties of windows | 4 | 4 | 4 | 4 | 4 |


IDEAL 8000 | IDEAL 7000 | IDEAL 4000 | BLOCKPROFILE | HST 85 MM
IDEAL 8000
Aluplast IDEAL 8000 ist ein perfekter Vorschlag für alle, die in ihrer Wohnung Komfort auf höchstem Niveau erwarten.
Das Fenstersystem IDEAL 8000 ist eine Kombination modernster technischer Lösungen zur Erzielung überdurchschnittlicher Eigenschaften, die Wärme, Ruhe, Sicherheit und einzigartige Ästhetik des Fensters garantieren. Wenn Sie sich für das Fenstersystem IDEAL 8000 entscheiden, wählen Sie ein Spitzenprodukt, bei dem Sie keine Kompromisse bei der Qualität der Profile und der verwendeten Materialien eingehen müssen. Die durchdachte Konstruktion und Profilgeometrie in Verbindung mit den verfügbaren Technologien gewährleisten eine hervorragende Statik, einen langfristigen Funktionserhalt der Fenster und einen störungsfreien Betrieb.
Die Schaffung von Fensterkonstruktionen mit geringer Wärmedurchlässigkeit ist nicht nur eine Modeerscheinung und eine interessante Tatsache, sondern die dauerhafte und langfristige Richtung der Fensterentwicklungstechniken. Das System IDEAL 8000 fügt sich perfekt in diese Art der Suche nach Wärmeenergieeinsparungen ein, indem es die Tiefe der Profile und die Anzahl der Innenkammern erhöht und eine neue Verglasungstechnologie für Fensterflügel einsetzt.
Das System Ideal 8000 ist eines der wenigen Systeme auf dem Markt mit einer sogenannten „klassischen Mitteldichtung“. Ein spezieller extrudierter Mittelfalz, an dem die dritte, innere Dichtung fest haftet, sorgt für eine bessere Dichtigkeit der gesamten Konstruktion, verbessert die thermischen und akustischen Eigenschaften und verhindert die Möglichkeit, die Flügel einzuschieben und den Zugang zu den Beschlägen zu blockieren.
Das System ist mit weißem, braunem und anthrazitfarbenem Kern erhältlich.
Das System IDEAL 7000 aus PVC ist ein Beispiel für die synergetische Nutzung der Eigenschaften von Profilen und Verbund-Doppelverglasungen zur Herstellung von Fenstern, die sich durch einen sehr niedrigen Wärmedurchgangskoeffizienten auszeichnen. Der Wärmedurchgangskoeffizient der Profile mit Uf = 1,1-1,0 W/m2K in Verbindung mit der Möglichkeit, breitere und wärmere Glaspakete mit einer Breite von bis zu 51 mm zu verwenden, garantiert die besten thermischen Parameter des Fensters.
Es handelt sich um ein System mit äußerer Dichtung, das die Möglichkeit bietet, eine energiesparende Lösung auch für verglaste Strukturen anzubieten, ohne dass Adapter erforderlich sind. Eine große Kammer mit massiver Stahlverstärkung garantiert die Stabilität des Rahmens. Das System ermöglicht die freie Verbindung von Rahmen mit anderen Profilserien mit einer Tiefe von 85 mm.
Die Serie Ideal 7000 ist ein multifunktionales System, das die MULTIFALZ-Technologie nutzt, d.h. eine optionale Möglichkeit, die Technologie des geklebten Glases anzuwenden. Dank der neuen Geometrie der Verglasungskerbe ist nicht nur die konventionelle Verglasung möglich, sondern auch das Einkleben der Fenster. Diese Technologien können je nach Bedarf abwechselnd oder kombiniert eingesetzt werden. So ist es z. B. möglich, die thermischen Eigenschaften der Struktur durch den Verzicht auf Stahlverstärkungen und die Verklebung der Fenster zu verbessern oder größere Fenster, Farben usw. sowohl durch die Verstärkung mit Stahlverstärkungen als auch durch die Technologie der Glasverklebung einzusetzen.
Der optionale Einsatz der Glaseinlegetechnik ermöglicht noch stabilere Fenster. Dank der dauerhaften Verbindung von Scheibe und Flügel wird das Risiko des Verbiegens, Verdrehens und Durchhängens des Flügels reduziert und so die Lebensdauer der Flügel verlängert, ohne dass sie nachgestellt werden müssen.
IDEAL 4000
Die Profilserie IDEAL 4000 verbindet modernste Technik mit höchstem Wohnkomfort. Starke Profilkonstruktion und große Kammern für Stahlverstärkungen garantieren optimale statische Parameter und ermöglichen den Bau von großen Fenstern. Die Mehrkammerkonstruktion gewährleistet eine hohe Wärme- und Schalldämmung. Originelles und harmonisches Design, kombiniert mit einer großen Auswahl an Systemlösungen, bieten unbegrenzte Möglichkeiten, Fenster zu gestalten und so den eigenen Stil zu unterstreichen. Das universelle System IDEAL 4000 eignet sich hervorragend sowohl für die moderne Architektur von Ein- und Mehrfamilienhäusern als auch für den Fall einer Renovierung.
IDEAL 4000 ist sowohl attraktiv in der Optik als auch effektiv in der Anwendung. Die vollständig quadratischen Profile und die dazu passenden Glasleisten ergeben Fenster und Türen mit klassischem Design, die für den Kunden sehr attraktiv sind. Das System verfügt über viele fortschrittliche Konstruktionsmerkmale, die eine einfache und wirtschaftliche Fertigung und Montage ermöglichen.
Spezifikation
- Wärmedämmwert der Standardkombinationen Uf = 1,3 W/m²K
- Verglasungsdicke bis zu 41 mm
- hervorragende Schalldämmung bis zur Schallschutzklasse IV (45 dB)
- doppelte Gestaltungsvielfalt im Flügel (vertieft | halbvertieft)
- verschiedene Profilformen für eine individuelle Gestaltung
- Design-Glasleiste für die Innenseite
- verdeckte Entwässerung ist möglich
- 5-Kammer-Profil in der Standardkombination
- umlaufende Anschlagdichtung im Rahmen und Flügel
- spezielle Sicherheitsbeschläge garantieren ein Höchstmaß an Einbruchschutz
- Anschlagdichtungs-System in zahlreichen Dekoren erhältlich
- erhältlich in den Kernfarben weiß, creme, braun und anthrazit
BLOCKPROFILE
Das System wurde für den niederländischen Markt entwickelt und bietet verschiedene Installationsmöglichkeiten. Es kann mit zwei Arten von Rahmen, mit oder ohne Außenfalz erhalten werden.
Die Blockprofilsysteme zeichnen sich durch die Verwendung von 120 mm breiten Rahmen aus, die mit verschiedenen Flügelvarianten (nicht flächenbündig, halbflächenbündig und flächenbündig) mit einer Breite von 70 mm kombiniert werden können.
Stahlverstärkungen mit großen Abmessungen ermöglichen den Bau von großen Fenstern bei gleichzeitiger Einhaltung der statischen Anforderungen. Sehr breite Fensterrahmen mit Außenfalz ermöglichen den einfachen und ästhetischen Einbau von Fenstern in ein Gebäude aus Klinkermauerwerk, ohne dass eine zusätzliche Bearbeitung des Mauerwerks erforderlich ist.
Spezifikation
- a Rahmentiefe: 120 mm
- eine Flügeltiefe von 70 mm
- eine 3-Kammer-Rahmenstruktur
- eine 5-Kammer-Flügelstruktur
- Beschläge mit Mikrobelüftung als Standard
- das 2-Dichtungs-System,
- weiße und cremefarbene Kerne
- die Möglichkeit, Verglasungseinheiten mit einer Breite von bis zu 36 mm zu verwenden,
Standard-Verglasungspaket 4/16Ar/4. Ug=1,1
HST 85 MM
Eine ideale Lösung für diejenigen, die eine bequeme Kombination von Innenraum und Terrasse und einen Panoramablick dank einer großen Glasfläche wünschen, ist die Verwendung von Hebe-Schiebetüren. Spezielle Beschlagmechanismen ermöglichen es, große Flügel mit minimalem Kraftaufwand zu bewegen. Wenn Sie den großen Griff aus der geschlossenen Position nach unten drehen, hebt sich der Flügel um einige Millimeter, wodurch der Druck der Dichtungen nachlässt und Sie die Flügel frei bewegen können.
Ein unbestreitbarer Vorteil dieser Art von Terrassentüren sind die möglichen Abmessungen ihrer Konstruktion. Die Breite des Flügels kann von 0,8 m bis 3 m breit und bis zu 2,7 m hoch in weißer Farbe sein, was Ihnen erlaubt, sogar eine mehr als sechs Meter lange Verglasung zu schaffen.
Änderungen in der Konstruktion der Profile haben eine deutliche Verbesserung der Wärmedurchlässigkeit der Profile ermöglicht, die je nach gewählter Option einen Durchschnittswert des Wärmedurchgangskoeffizienten Uf = von 1,5 W (m2 * K) in der Basic-Version, über Uf = 1,3 W (m2 * K) in der Standard-Version bis zu Uf = 1,1 W (m2 * K) in der Premium-Version ermöglicht. Trotz ihrer enormen Größe bleiben Hebeschiebetüren eine wirksame Barriere gegen den Austritt von Wärme.
In der nachstehenden Tabelle sind die Werte des Wärmedurchgangskoeffizienten Uw für ein Beispiel für Hebeschiebetüren (SCHEMA A) mit den Abmessungen 4000 x 2300 mm angegeben, die mit Zweikammerglas mit einem Wärmedurchgangskoeffizienten für den mittleren Teil der Scheibe Ug = 0,5 W (m2 * K) und Ug = 0,7 W (m2 * K) verglast sind, sowie die Werte des linearen Wärmedurchgangskoeffizienten der Wärmebrücke an der Schnittstelle zwischen der Scheibe und dem Rahmen Ψ = 0,04 W (m2 * K).
Das System ist mit weißem, braunem, cremefarbenem und anthrazitfarbenem Kern erhältlich.


PVC-Fenster – Eigenschaften
PVC-Fenster sind derzeit die am häufigsten gewählte Option, sowohl für neue Häuser als auch für den Austausch alter gegen neue Fenster. Sie sind universell einsetzbar und haben ein klassisches Aussehen. Sie sind vielseitig einsetzbar, so finden sich PVC-Balkonfenster oder PVC-Dachfenster in fast jedem Haus.
Die Konstruktion von PVC-Fenstern ist recht einfach. Die Rahmen bestehen aus einem System von Profilen und Dichtungen. Aimwin setzt auf Qualität und bietet dreifach verglaste Fenster an. Die Energieeffizienz des Fensters hängt hauptsächlich davon ab. Uw, also der Wärmedurchgangskoeffizient der angebotenen Fenster, kann bis zu 0,76 [W / m2K] betragen. Diese Parameter erfüllen die Bedingungen für energieeffiziente Häuser und Passivhäuser. PVC-Fenster sind witterungsbeständig, wodurch sie ihre ästhetischen Werte für lange Zeit beibehalten. Die breite Farbpalette der PVC-Fenster (z.B. braune PVC-Fenster) macht es einfach, sie an die Fassade anzupassen. Neben den bunten Farben können die PVC-Fenster auch furniert werden.
PVC-Fenster – neue Lösungen
Die neuen Lösungen bei der Herstellung von PVC-Fenstern betreffen vor allem die Sicherheit. Es wurden Beschläge eingeführt, die als einbruchhemmend zertifiziert sind. Darüber hinaus sind gute PVC-Fenster mit folgenden Elementen ausgestattet::
Einbruchsicherer Verschluss
Reed-Schalter
Das sind Fensteröffnungssensoren, die Teil der Alarmanlage sein können. Sie stellen einen wirksamen und diskreten Schutz gegen „ungebetene Gäste“ dar. Die modernsten Reed-Schalter sind in die Beschläge integriert, so dass sie jede Bewegung, z. B. eine Drehung des Griffs, signalisieren können.
Sie erfüllen auch andere nützliche Funktionen, z. B. können sie die Heizung ausschalten, wenn das Fenster nicht verschlossen oder geöffnet ist.
Kippbarer erster Griff
Die Sicherheit besteht darin, das Fenster mit einem speziellen Griff auszustatten und die umgekehrte Reihenfolge des Öffnens anzuwenden: Kippen vor Öffnen.
Nach einer Drehung des Griffs um 90 Grad verriegelt der Mechanismus den Fensterflügel in der gekippten Stellung und verhindert sein Öffnen. Erst durch Drehen des Schlüssels im Griff wird die Verriegelung gelöst und das Fenster kann geöffnet werden.
Secustic-Griff
Jede Drehung des Griffs bewirkt eine präzise Verschiebung der Verriegelungswellen in die nachfolgenden Positionen am Umfang des Gehäuses. Sie wird von einem charakteristischen Klicken begleitet, das die aktive Sicherheitsfunktion bestätigt.
Der patentierte Verriegelungsmechanismus verhindert die Manipulation des Secustik-Griffs und das Öffnen des Fensters von außen und schützt es so vor Einbrüchen.
Einbruchhemmender SecuForte-Griff
Griffe mit SecuForte-Technologie lassen sich nur von innen und nur durch Drücken des Griffs zur Rosette hin bedienen. Solange der Griff von der Spindel gelöst ist, lässt er sich von außen kaum bewegen – auch nicht in Kippstellung.
Damit schützen die SecuForte-Fenstergriffe wirksam vor Einbruchsversuchen durch Durchschlagen des Glases und Aufbohren des Rahmens sowie vor dem Verschieben des Beschlages von außen.
Der Beschlag kann in einer der Einbruchhemmungsklassen zertifiziert werden. Immer häufiger ist dies eine Bedingung der Haus- und Grundstücksversicherung.
Zertifizierte Beschläge unterscheiden sich von gewöhnlichen Beschlägen:
- mehrere Diebstahlsicherungen in einer festen Anordnung
- auf der Getriebekassette montierte Aufbohrschutzplatte (d.h. das Beschlagselement, auf dem dann der Griff montiert wird)
- Verwendung eines speziellen Griffs mit Schlüssel
Die Kennzeichnung des Beschlags mit der Klasse WK1 oder RC1 N setzt voraus, dass er je nach Größe des Fensters mit zwei, drei oder vier Diebstahlsicherungen ausgestattet sein muss. Bei der Klasse WK2, RC2 oder RC2N müssen alle Sperren einbruchhemmend sein, wobei ihre Anzahl und Anordnung für die jeweilige Flügelgröße genau festgelegt sind.
Die Ästhetik der Ausführung
Wir bieten die 1- oder 2-seitige Verblendung an, sowie die Bi-Color-Option, d.h. die Verblendung in zwei verschiedenen Farben gleichzeitig aus mehreren Dutzend Furnieren.





















